Nhu cầu chăm sóc sức khỏe ngày càng tăng, dẫn đến việc đầu tư xây dựng bệnh viện đa khoa cần được triển khai trên nền tảng quy chuẩn rõ ràng, khoa học. Một công trình y tế đạt chất lượng phụ thuộc rất lớn vào tiêu chuẩn thiết kế bệnh viện. Bởi đây là cơ sở định hướng toàn bộ tổ chức không gian, công năng sử dụng, mức độ an toàn vận hành.
Bài viết dưới đây Vacons cung cấp góc nhìn tổng quan, cập nhật những tiêu chuẩn thiết kế mới nhất, phù hợp thực tiễn hiện nay. Thế nên, hãy đọc đến cuối bài để biết đó là những tiêu chuẩn nào nhé!
Contents
Tổng Quan Tiêu Chuẩn Thiết Kế Bệnh Viện Đa Khoa Hiện Nay
Khái niệm tiêu chuẩn thiết kế bệnh viện là gì?
Tiêu chuẩn thiết kế bệnh viện là hệ thống quy định chuyên môn nhằm định hướng việc quy hoạch, bố trí mặt bằng, tổ chức không gian chức năng trong công trình y tế. Các tiêu chuẩn này được xây dựng dựa trên đặc thù hoạt động khám chữa bệnh, yêu cầu kiểm soát nhiễm khuẩn, điều kiện an toàn sinh học.
Đối với bệnh viện đa khoa, thiết kế bệnh viện còn cần đáp ứng khả năng tích hợp nhiều chuyên khoa trong cùng một tổng thể thống nhất.

Các văn bản pháp lý quy định
Tại Việt Nam, tiêu chuẩn thiết kế bệnh viện được ban hành dựa trên hệ thống quy chuẩn xây dựng quốc gia, tiêu chuẩn ngành y tế, hướng dẫn chuyên môn từ Bộ Y tế. Một số quy định tập trung vào:
- Diện tích sử dụng
- Khoảng cách an toàn
- Tổ chức luồng di chuyển nội bộ
- Yêu cầu kỹ thuật hạ tầng
Việc tuân thủ đầy đủ các văn bản này giúp công trình đáp ứng điều kiện pháp lý khi thẩm định, cấp phép xây dựng.
Tầm quan trọng của việc áp dụng đúng tiêu chuẩn
Áp dụng đúng tiêu chuẩn giúp nâng cao hiệu quả vận hành. Giảm thiểu rủi ro trong quá trình sử dụng. Không gian được tổ chức hợp lý hỗ trợ đội ngũ y tế thao tác thuận lợi. Người bệnh tiếp cận dịch vụ nhanh chóng.
Ngoài ra, tiêu chuẩn còn góp phần kiểm soát lây nhiễm chéo. Bảo vệ sức khỏe cộng đồng trong dài hạn.
Tiêu Chuẩn Thiết Kế Bệnh Viện Đa Khoa Theo Từng Khu Chức Năng
Tiêu chuẩn thiết kế khu khám bệnh, điều trị
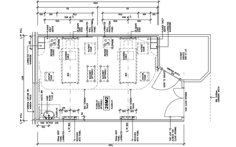
Khu khám bệnh đóng vai trò tiếp nhận người bệnh. Do đó cần bố trí tại vị trí dễ tiếp cận, giao thông thuận lợi. Tiêu chuẩn thiết kế quy định rõ diện tích phòng khám, phòng chờ, khoảng cách giữa các khu chức năng. Luồng di chuyển của người bệnh ngoại trú cần tách biệt với luồng nội trú nhằm giảm ùn tắc, hạn chế lây nhiễm. Không gian xanh, phải đảm bảo thông thoáng, chiếu sáng tự nhiên hợp lý.

Tiêu chuẩn thiết kế khu kỹ thuật nghiệp vụ
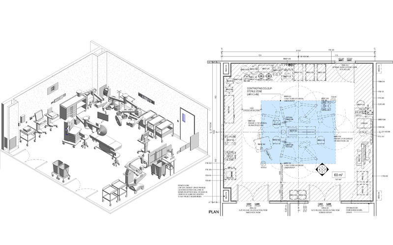
Khu kỹ thuật nghiệp vụ bao gồm xét nghiệm, chẩn đoán hình ảnh, phẫu thuật. Đây là khu vực có yêu cầu kỹ thuật cao, chịu sự kiểm soát nghiêm ngặt từ tiêu chuẩn bệnh viện. Việc bố trí cần đảm bảo liên kết logic giữa các khoa. Rút ngắn thời gian vận chuyển mẫu bệnh phẩm. Hệ thống thông khí, xử lý khí thải, cấp thoát nước phải đáp ứng tiêu chuẩn chuyên ngành nhằm duy trì môi trường vô trùng.

Tiêu chuẩn thiết kế khu hành chính, phụ trợ
Khu hành chính, hậu cần tuy không trực tiếp tham gia điều trị. Nhưng giữ vai trò hỗ trợ vận hành toàn bộ bệnh viện. Tiêu chuẩn thiết kế yêu cầu khu vực này được bố trí tách biệt với khu khám chữa bệnh nhằm giảm giao thoa luồng di chuyển. Không gian kho, khu xử lý chất thải y tế cần được thiết kế khép kín. Tuân thủ quy định bảo vệ môi trường, an toàn sinh học.

Xem thêm: Tin Tức Mới Nhất Về Lĩnh Vực Thiết Kế Thi Công – Kiến Trúc Nội Thất
Xu Hướng, Lưu Ý Khi Áp Dụng Tiêu Chuẩn Thiết Kế Bệnh Viện Mới Nhất
Xu hướng thiết kế bệnh viện đa khoa hiện đại theo tiêu chuẩn mới
Hiện nay, nhiều dự án bệnh viện đa khoa áp dụng tiêu chuẩn theo hướng linh hoạt, thích ứng tương lai. Thiết kế xanh, tận dụng ánh sáng tự nhiên, thông gió hiệu quả được ưu tiên. Nhằm cải thiện trải nghiệm người bệnh. Thiết bị công nghệ thông minh cũng được tích hợp vào hệ thống quản lý. Giúp tối ưu vận hành, tiết kiệm năng lượng.

Những sai sót thường gặp khi áp dụng tiêu chuẩn
Một số chủ đầu tư gặp khó khăn do áp dụng tiêu chuẩn một cách máy móc, thiếu nghiên cứu thực tế. Việc sao chép mô hình thiết kế từ công trình khác có thể dẫn tới bất cập trong vận hành.
Tiêu chuẩn cần được hiểu đúng bản chất, linh hoạt điều chỉnh theo:
- Quy mô
- Đặc điểm địa phương
- Nhu cầu sử dụng thực tế
Giải pháp tối ưu khi thiết kế bệnh viện chuẩn đa khoa
Để phát huy hiệu quả của tiêu chuẩn thiết kế, chủ đầu tư nên phối hợp chặt chẽ với đơn vị tư vấn chuyên ngành ngay từ giai đoạn quy hoạch. Việc cập nhật tiêu chuẩn mới, tham khảo mô hình bệnh viện tiên tiến. Giúp công trình đạt giá trị sử dụng bền vững. Đồng thời, quá trình thiết kế cần tính đến khả năng mở rộng trong tương lai. Nhằm đáp ứng nhu cầu khám chữa bệnh ngày càng tăng.
Có thể thấy, tiêu chuẩn thiết kế bệnh viện giữ vai trò nền tảng trong việc hình thành một bệnh viện đa khoa hiện đại, an toàn, hiệu quả. Việc hiểu đúng, áp dụng chuẩn mực giúp công trình đáp ứng yêu cầu pháp lý. Nâng cao chất lượng dịch vụ y tế.
Trong bối cảnh ngành y tế liên tục phát triển, việc cập nhật tiêu chuẩn thiết kế mới mỗi ngày Vacons cho rằng đó chính là chìa khóa để xây dựng hệ thống bệnh viện phục vụ cộng đồng một cách bền vững.
Vacons – Đơn vị thiết kế thi công văn phòng uy tín, sáng tạo
- Trụ sở chính: Số 25 đường 34, phường An Khánh, Tp. Thủ Đức, TPHCM
- Văn phòng Hà Nội: Tầng 19, Tháp 1, Capital Place, 29 Liễu Giai, phường Ngọc Khánh, quận Ba Đình, Hà Nội
- Hotline: (+84) 917.886.188 – (028)355.402.16
- Email: info@vacons.com.vn
- Website: https://vacons.com.vn/
- Fanpage: https://www.facebook.com/vacons.architect/

